DOS AMBIENTES AL POZO! PRECIO DE LOCOS

direccion Avenida Alsina 900, Banfield

volver Volver al listado
left
right
left
right

Venta

USD 65.800

  • Tipo de propiedad Departamentos
  • ambientes 2 Ambientes
  • toilet 1 baño
  • cama 1 Dormitorio
  • Superficie cubierta Sup. cubierta 47m2
  • Superficie total Sup. total 47m2

Acerca de la propiedad

[BARANDIARA-821]

ACEPTA FINANCIACION

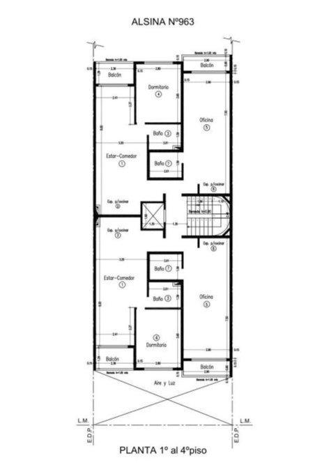
Emprendimiento en Pozo Avenida Alsina 963
Banfield Centro
Presentamos un nuevo desarrollo de viviendas de 1 y 2 ambientes, ubicado estratégicamente sobre Avenida Alsina, en el corazón de Banfield.
El proyecto contará con 4 pisos de modernos departamentos, diseñados para combinar funcionalidad, confort y excelente conectividad.
Financiación a tu medida: Anticipo y hasta 18 cuotas.
Constructora AMIX respaldo y calidad garantizada.
Oportunidad ideal tanto para vivienda como para inversión.
Consultanos por precios exclusivos de lanzamiento y las distintas posibilidades de financiación disponibles.
¡Invertí hoy en tu futuro hogar!

Servicios: Electricidad, Gas, Agua Corriente

Comodidades

Ver más

Ubicación

Servicio brindado por

buscadorprop

Todos los derechos registrados:

grupotodo
whatsapp Whatsapp email Contactar telefono Llamar
Chatea con nosotros whatsapp