LOCAL AL POZO CON 4 COCHERAS Y DEPÓSITO

direccion Avenida Alsina 750, Banfield

volver Volver al listado
left
right
left
right

Venta

USD 400.000

  • Tipo de propiedad Locales
  • toilet 2 baños
  • Superficie cubierta Sup. cubierta 166m2
  • Superficie total Sup. total 166m2

Acerca de la propiedad

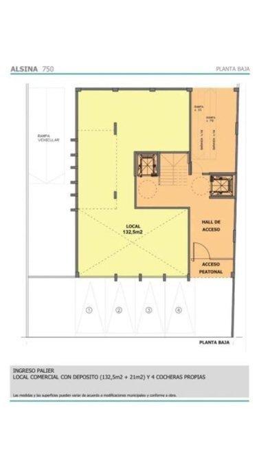
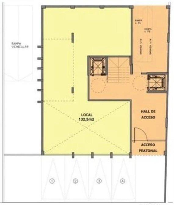
Local comercial en ALSINA 750 Banfield Centro - Planta Baja, 166 m²
Se presenta este local comercial de 166 m² ubicado en la planta baja del edificio ALSINA 750, en pleno corazón de Banfield, a solo dos cuadras de la estación y con acceso directo a la principal avenida.
El local contará con una excelente visibilidad y distribución, ideal para distintos rubros comerciales, y forma parte de un proyecto moderno con amenities de primer nivel, que incluyen SUM, gimnasio, piscina con deck y solárium, vestuarios y cocheras.
Financiación disponible: anticipo del 40% y saldo en hasta 30 cuotas mensuales.
Una oportunidad única para establecer tu negocio en un entorno estratégico, con alto potencial de valorización.

Servicios: Electricidad, Gas, Agua Corriente

Comodidades

  • Cochera 4 cocheras
Ver más

Ubicación

Servicio brindado por

buscadorprop

Todos los derechos registrados:

grupotodo
whatsapp Whatsapp email Contactar telefono Llamar
Chatea con nosotros whatsapp