OFICINA MONOAMBEINTE AL POZO! 5°B

direccion Cochabamba 241, Banfield

volver Volver al listado
left
right
left
right

Venta

USD 65.721

  • Tipo de propiedad Oficinas
  • ambientes 1 Ambiente
  • toilet 1 baño
  • Disposicion Disposicion Frente
  • Superficie cubierta Sup. cubierta 35m2
  • Superficie total Sup. total 35m2

Acerca de la propiedad

¡EXCELENTE OPORTUNIDAD DE INVERSIÓN EN BANFIELD!

Oficina en construcción ubicada estratégicamente a media cuadra de Av. Alsina y a solo dos cuadras de la estación de tren de Banfield. Ideal para profesionales o emprendedores que buscan un espacio moderno en una ubicación privilegiada.

Características destacadas:
Unidad: Piso 5°, letra \"B\".
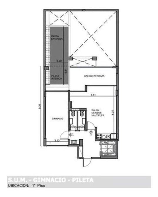
Edificio con amenities premium:
Salón de usos múltiples (SUM).
Piscina.
Gimnasio.

Beneficios de financiación:
Anticipo del 40% del valor total.
Saldo en 12 cuotas mensuales a convenir.
¡No dejes pasar esta oportunidad! Para más información, no dudes en consultarnos.

Comodidades

Ver más

Ubicación

Servicio brindado por

buscadorprop

Todos los derechos registrados:

grupotodo
whatsapp Whatsapp email Contactar telefono Llamar
Chatea con nosotros whatsapp