MONOAMBIENTE CÉNTRICO EN CONSTRUCCIÓN

direccion Cochabamba 241, Banfield

volver Volver al listado
left
right
left
right

Venta

Rebajado

Precio rebajado

USD 66.580

Rebaja 3 %
  • Tipo de propiedad Departamentos
  • ambientes 1 Ambiente
  • toilet 1 baño
  • cama 1 Dormitorio
  • Disposicion Disposicion Contrafrente
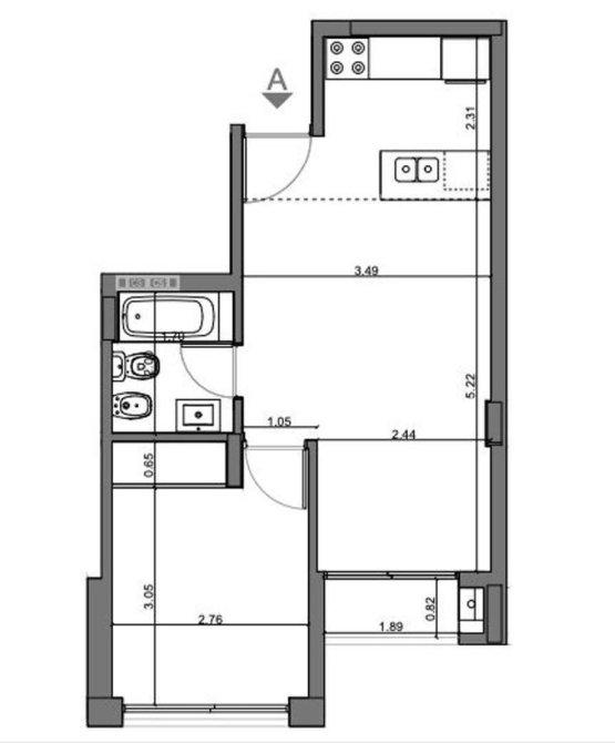
  • Superficie cubierta Sup. cubierta 35m2
  • Superficie total Sup. total 35m2

Acerca de la propiedad

¡EXCELENTE OPORTUNIDAD DE INVERSIÓN EN BANFIELD!

Monoambiente en construcción ubicada estratégicamente a media cuadra de Av. Alsina y a solo dos cuadras de la estación de tren de Banfield. Ideal para profesionales o emprendedores que buscan un espacio moderno en una ubicación privilegiada.

Características destacadas:
Unidad: Piso 6°, letra \"B\".
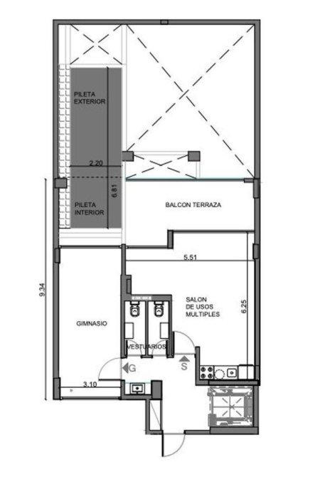
Edificio con amenities premium:
Salón de usos múltiples (SUM).
Piscina.
Gimnasio.

Beneficios de financiación:
Anticipo del 40% del valor total.
Saldo en 12 cuotas mensuales a convenir.
¡No dejes pasar esta oportunidad! Para más información, no dudes en consultarnos.

Servicios: Electricidad, Pavimento, Cloacas, Gas, Teléfono, Agua Corriente

Otros Servicios: Balcón

Comodidades

  • Pileta Con pileta
Ver más

Ubicación

Servicio brindado por

buscadorprop

Todos los derechos registrados:

grupotodo
whatsapp Whatsapp email Contactar telefono Llamar
Chatea con nosotros whatsapp