OFICINA EN CONSTRUCCION EN VENTA 2°D

direccion Cochabamba 241, Banfield

volver Volver al listado
left
right
left
right

Venta

Rebajado

Precio rebajado

USD 70.540

Rebaja 7 %
  • Oportunidad
Codigo Código de propiedad: DS
  • Tipo de propiedad Oficinas
  • ambientes 2 Ambientes
  • toilet 1 baño
  • Superficie cubierta Sup. cubierta 45m2
  • Superficie total Sup. total 45m2
  • Antiguedad Antigüedad En construcción
  • Estado Estado Excelente

Acerca de la propiedad

¡EXCELENTE OPORTUNIDAD DE INVERSIÓN EN BANFIELD!

Oficina en construcción ubicada estratégicamente a media cuadra de Av. Alsina y a solo dos cuadras de la estación de tren de Banfield. Ideal para profesionales o emprendedores que buscan un espacio moderno en una ubicación privilegiada.

Características destacadas:
Unidad: Piso 2°, letra "D".
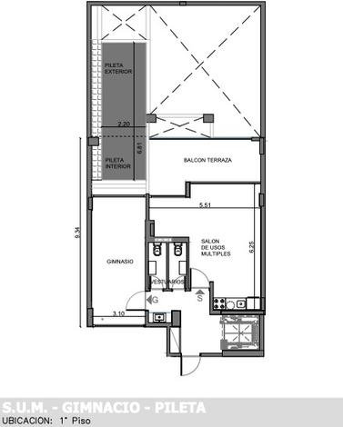
Edificio con amenities premium:
Salón de usos múltiples (SUM).
Piscina.
Gimnasio.

Opcional: Cocheras disponibles en planta baja y subsuelo.

Beneficios de financiación:
Anticipo del 40% del valor total.
Saldo en 20 cuotas mensuales a convenir.

¡No dejes pasar esta oportunidad! Para más información, no dudes en consultarnos.

Comodidades

Ver más

Ubicación

Servicio brindado por

buscadorprop

Todos los derechos registrados:

grupotodo
whatsapp Whatsapp email Contactar telefono Llamar
Chatea con nosotros whatsapp